
Con l'obiettivo di ridurre la quantità e la gravità degli incidenti stradali, Roma Capitale ha individuato i Black Points ovvero le intersezioni stradali a massimo rischio incidentale sulla viabilità, attraverso il lavoro congiunto dell'Assessorato alla Mobilità, Dipartimento Mobilità Sostenibile e Trasporti e Roma Servizi per la Mobilità.
Back to top
Cosa sono
I Black Points rappresentano intersezioni stradali o aree urbane caratterizzate da un elevato rischio per la sicurezza stradale. Questi luoghi, più suscettibili a incidenti, sono identificati grazie a fattori come la complessità del traffico, la carenza di segnaletica, ostacoli visivi e flussi di veicoli intensi. La programmazione da parte Roma Capitale degli interventi di messa in sicurezza dei Black Points ha come obiettivi:
- Migliorare l'accessibilità per tutti, inclusi pedoni e ciclisti.
- Accrescere la qualità della vita urbana e riqualificare gli spazi pubblici.
- Ridurre incidenti stradali e migliorare la salute pubblica.
- Ridurre l'inquinamento e le emissioni di gas serra.
- Garantire l'accessibilità alle persone con mobilità ridotta e agli anziani.
- Specifiche soluzioni progettuali per la messa in sicurezza includono:
- Ottimizzazione della geometria stradale.
- Installazione di nuova segnaletica orizzontale e verticale.
- Controllo della velocità dei veicoli.
- Riprofilatura dei cigli e cordoli spartitraffico.
- Riprogettazione degli attraversamenti pedonali e dei percorsi per persone con mobilità ridotta.
Back to top
Mappa
La prima fase degli interventi riguarderà 37 Black Point di cui 30 dedicati alla sicurezza pedonale.
Interventi realizzati
Black point via Nomentana - Corso Trieste - via L. Spallanzani - via Zara

L'intervento, concluso a luglio 2023, di messa in sicurezza ha riguardato l'ottimizzazione delle intersezioni e la realizzazione di soluzioni per migliorare la sicurezza dei pedoni, ciclisti e veicoli.
Le azioni principali incluse sono state:
- Riprofilatura stradale per una definizione più chiara delle traiettorie.
- Nuove segnaletiche orizzontali e verticali per aumentare la visibilità.
- Riduzione della velocità tramite nuove misure di controllo del traffico.
- Miglioramento degli attraversamenti pedonali e rimozione delle barriere architettoniche per garantire l'accessibilità.
Black point via Cardinal Pacca - via Casale San Pio V
Nell'intersezione tra via Cardinal Pacca e via Casale San Pio V, l’intervento concluso a luglio 2024, ha comportato:

- Miglioramento della geometria stradale per favorire traiettorie più sicure.
- Nuova segnaletica orizzontale e verticale per migliorare la visibilità e l'orientamento degli utenti della strada.
- Sistemi di controllo della velocità per ridurre i rischi di incidenti.
- Riprogettazione degli attraversamenti pedonali per garantire una sicurezza maggiore ai pedoni.
- Accessibilità per le persone con mobilità ridotta, con la realizzazione di scivoli e percorsi tattili.
Questi interventi sono stati fondamentali per migliorare la sicurezza in un punto particolarmente critico della rete viaria.
Black point via Odoardo Beccari - via Ambrogio Contarini
L’intervento su via Odoardo Beccari, concluso il 26 marzo 2025, comporta un miglioramento dell’accessibilità per i pedoni e la protezione delle aree destinate alla sosta, prevenendo la sosta in doppia fila e migliorando lo spazio pedonale.
Obiettivi:
- Riduzione della velocità veicolare attraverso il restringimento della carreggiata in corrispondenza degli attraversamenti pedonali.
- Realizzazione di un cordolo centrale "salvagente", che protegge i pedoni e consente di attraversare la strada in due fasi distinte, riducendo il tempo di esposizione al rischio.
- Riprofilatura dei marciapiedi lungo i due lati della strada per garantire maggiore visibilità e sicurezza, soprattutto in prossimità degli attraversamenti.
- Abbattimento delle barriere architettoniche, garantendo una piena fruibilità da parte delle persone con disabilità.
- Rifacimento della segnaletica orizzontale e verticale per una maggiore chiarezza e sicurezza stradale.
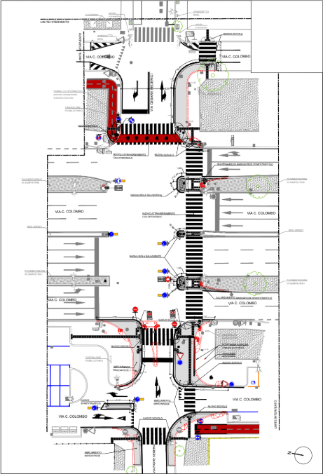
Black point via C. Colombo - Piazzale Agricoltura
L'intervento, iniziato il 26 marzo 2025, è terminato il 30 giugno 2025.
L'area destinata alla messa in sicurezza è ubicata nel Municipio IX, nell'ambito del quartiere EUR, caratterizzato da una elevata densità di insediamenti (amministrativo e/o terziario).
Il progetto nel suo complesso ha avuto l'obiettivo di migliorare le condizioni di sicurezza dell'intersezione tramite diverse tipologie di intervento e lavorazioni:
- Realizzazione di corsie di accelerazione/decelerazione per gli scambi tra carreggiate
- Chiusura di scambi a 90° tra le carreggiate
- Adeguamento della segnaletica stradale
- Interventi sulla pavimentazione stradale
- Spostamento di pozzetti e caditoie
- Spostamento di pali di illuminazione interferenti con le opere.
Black Point via Cristoforo Colombo – via Ermanno Wolf Ferrari – via Pindaro
L’intervento progettuale, avviato il 3 febbraio 2025, riguarda il territorio del X Municipio, tra i quartieri Casalpalocco e Infernetto ed è terminato il 14 giugno 2025.
Obiettivo primario del progetto è regolare efficacemente il flusso del traffico al fine di limitare comportamenti non adeguati, ridurre la velocità e migliorare complessivamente la visibilità dell'area, nel rispetto dei vincoli territoriali.
Tra gli interventi specifici:
- Canalizzazione del traffico con suddivisione in due corsie parallele e introduzione di un doppio semaforo
- Revisione e ottimizzazione delle connessioni pedonali attraverso la ridefinizione delle isole spartitraffico, l’installazione di paletti dissuasori e l’inserimento di percorsi tattili per agevolare la mobilità delle persone ipovedenti. Il disegno prevede l’integrazione con il progetto della ciclabile “Ciclomare”
- Spostamento e adeguamento dei pozzetti esistenti e nuove caditoie per favorire il drenaggio dell’acqua piovana
- Aggiornamento della segnaletica orizzontale e verticale e installazione di segnaletica luminosa “occhi di gatto”
- Rinnovo della pavimentazione stradale.

Black Point via Cristoforo Colombo – via Federici – via Padre Semeria
L'intervento, avviato il 7 aprile 2025, consiste nell’inserimento di isole salva pedoni mediante il prolungamento dei tre spartitraffico presenti su Via Cristoforo Colombo, lato Piazza dei Navigatori.
Le altre opere previste dal progetto sono:

- Rinnovo dell’attraversamento ciclabile in testa a via Cesare Federici. Pertanto la lunghezza degli attraversamenti di Via Cristoforo Colombo si ridurranno da 42 m complessivi a 35 m, con un massimo tratto di attraversamento scoperto pari a 9 m, garantendo una maggiore protezione del pedone nel mezzo della carreggiata.
- Allargamento dei marciapiedi in corrispondenza degli attraversamenti di Via Cristoforo Colombo e di Via Padre Semeria. Questi interventi portano ad una migliore definizione delle traiettorie ed ad una diminuzione della lunghezza degli attraversamenti che passano da 32 metri complessivi a 23 m.
- Realizzazione di tre nuovi attraversamenti con l’opportuno rifacimento della relativa segnaletica orizzontale: due lungo le complanari esterne di Via Cristoforo Colombo ed una lungo Via Padre Semeria
- confermato il doppio senso di marcia per la carreggiata esterna di Via Cristoforo Colombo, direzione Piazza dei Navigatori, verrà inserito uno spartitraffico per una migliore regolazione delle traiettorie in entrata e in uscita dall’area a parcheggio, presente sempre in carreggiata esterna della via Cristoforo Colombo a sinistra dell’incrocio con via Padre Semeria.
- Ulteriore variazione della circolazione con l’allargamento del marciapiede e l’eliminazione della svolta, sebbene già non regolare, da Via Cristoforo Colombo, direzione Piazza dei Navigatori, verso Via Padre Semeria.
La nuova intersezione sarà priva di barriere architettoniche.

L'intervento si è concluso il 5 luglio 2025.
Black Point via Ugo Ojetti - via Francesco Jovine

Il Black Point pedonale di “Via Ugo Ojetti-Via Francesco Jovine” si trova nel Municipio III, all’interno del perimetro urbano nella zona nordest della città, servito da linee TPL portanti e di adduzione alle vicine stazioni metropolitane, con livelli di servizio e frequenze elevate.
I lavori su via Ojetti, nel tratto compreso tra piazza Primoli e piazza Talenti, mirano a dare omogeneità alla sezione stradale, composta da due corsie per senso di marcia, come nel tratto precedente (G. Stampa-Primoli).
L’obiettivo del progetto è:
- Ridurre la lunghezza degli attraversamenti pedonali per migliorare la sicurezza
- Limitare i comportamenti scorretti alla guida
- Aumentare la visibilità del pedone
Le tipologie di intervento previste sono: - Revisione della sezione stradale
- Realizzazione di nuovi marciapiedi o ampliamento di quelli esistenti (Si prevedono ampliamenti di marciapiedi "orecchie" alle intersezioni di via Ugo Ojetti con via Renato Fucini, via Arturo Graf, via Ettore Romagnoli e via Luigi Capuana per racchiudere la sosta in linea su via Ugo Ojetti)
- Inserimento e/o adeguamento degli attraversamenti pedonali
- Riposizionamento della fermata TPL (L’attesa alle fermate del bus avverrà su un’isola dedicata, di conseguenza non sarà necessario attraversare la pista ciclabile all’arrivo del mezzo e la pista proseguirà senza interruzioni in corrispondenza della fermata)
- Spostamento di pozzetti e caditoie
- Adeguamento della segnaletica stradale
- Rinnovo della pavimentazione stradale.
L'intervento si è concluso il 20 giugno 2025.
Black Point - via Cristoforo Colombo - via Canale della Lingua
Il progetto di messa in sicurezza, iniziato ad aprile 2025, interessa l’intersezione Via Cristoforo Colombo – Via del Canale della Lingua, all’interno del X Municipio e concluso il 10 luglio 2025.
Prevede un nuovo schema di circolazione dell’intersezione esistente con razionalizzazione delle svolte e l’introduzione di una nuova intersezione semaforizzata in via Giulio Bertoni.
Gli interventi riguarderanno:
- Rinnovata segnaletica orizzontale a cui verrà affiancato il dispositivo “occhi di gatto”
- Realizzazione di marciapiedi e banchine di fermata del TPL e di isole di traffico
- Abbattimento delle barriere architettoniche attraverso la realizzazione di scivoli alle banchine di fermata e adozione di percorsi tattili in corrispondenza degli attraversamenti pedonali
- Nuova pavimentazione stradale
- Installazione di barriere guard-rail e di attenuatori d’urto
- Archetti parapedonali in corrispondenza dei nuovi varchi pedonali e delle banchine di fermata TPL
- Piantumazione compensativa di nuovi alberi
- Adeguamento dell’impianto semaforico dell’intersezione esistente (via C.Colombo/via Canale della Lingua) e realizzazione di un nuovo impianto nella nuova intersezione (via C. Colombo/via G. Bertoni)



Ante Post


Black Point Largo Somalia![]()

Il sito è localizzato nel Municipio II, nel perimetro urbano nella zona nord/est della città. È una zona ad alta densità residenziale con presenza di esercizi commerciali e linee di trasporto pubblico.
L’intervento, avviato il 21 ottobre 2025 e concluso il 1 dicembre, è stato progettato per risolvere diverse criticità, tra cui l'eccessiva larghezza della strada che induceva comportamenti rischiosi, la scarsa visibilità dovuta alla sosta irregolare, la presenza di barriere architettoniche.
La riqualificazione ha previsto varie tipologie di lavori, tra cui:
- realizzazione o in alcuni casi adeguamento degli attraversamento pedonali
- revisione della sezione stradale mediante isole spartitraffico al fine di ridurre l'area di conflitto tra pedoni e veicoli
- nuovi marciapiedi e ampliamento di quelli esistenti
- adeguamento della segnaletica
- rinnovo della pavimentazione stradale
Ante Post

Ante Post

Black point via Cardinal Ginnasi - via Vannutelli
L’intervento, avviato il 25 luglio 2025 e terminato il 23 ottobre 2025, si colloca nel X Municipio, nella frazione litoranea del Lido di Ostia. L’area è urbana e densamente abitata, con presenza di servizi e attività ludico-ricreative.
Le carreggiate molto ampie favoriscono l’alta velocità e inversioni pericolose. Gli attraversamenti pedonali molto lunghi aumentano l’esposizione al rischio e la sosta irregolare diffusa riduce la visibilità. Sono inoltre presenti barriere architettoniche.
Sono stati realizzati i seguenti interventi:
- Riduzione dell’ampiezza delle corsie
- Ampliamento dei marciapiedi su tutti e 4 gli angoli dell’intersezione, per aumentare visibilità e sicurezza
- Riduzione degli attraversamenti pedonali, con isole salvapedoni intermedie
- Nuova segnaletica orizzontale, verticale e rifrangente
- Abbattimento barriere architettoniche
- Regolarizzazione della sosta e ottimizzazione della pavimentazione stradale




Back to top
Interventi in corso di realizzazione
Black point via Nomentana - via di Casal Boccone - via del Casale di San Basilio
I lavori, dal 9 giugno 2025, hanno come obiettivo la messa in sicurezza di tre intersezioni nei Municipi III e IV:
- via Nomentana - via D. Fabbri
- via Nomentana - via di Casale S. Basilio
- via di Casale S. Basilio - via T. Buazzelli - via N. M. Nicolai
Il progetto, che prevede un nuovo schema di circolazione con istituzione di sensi unici di marcia, contempla diverse tipologie di intervento:
- Migliore definizione delle traiettorie per ridurre le situazioni di incertezza
- Nuova segnaletica orizzontale e verticale, più chiara e comprensibile
- Controllo e riduzione della velocità per prevenire incidenti e aumentare la sicurezza dei pedoni
- Riprofilatura dei cigli e dei cordoli spartitraffico per ridurre il rischio di collisioni e aumentare la visibilità
- Messa in sicurezza, ove necessario, degli attraversamenti e percorsi pedonali

- Regolazione semaforica per ridurre i tempi di attesa e gestire più efficacemente il traffico
- Abbattimento delle barriere architettoniche, garantendo accessibilità dei percorsi alle persone con disabilità
- Adeguamento del sistema di illuminazione pubblica
Il termine dei lavori è previsto per la metà di maggio 2026.
Black point via Portuense - via Arturo Martini
L'intervento, avviato il 17 novembre 2025, si trova nel Municipio XI, nel quartiere densamente popolato di Corviale, in prossimità del Grande Raccordo Anulare. È una zona caratterizzata da alti flussi di traffico a velocità elevate. In questo tratto via Portuense è una strada a doppio senso di marcia, con carreggiate molto ampie.
Data l’ampiezza della carreggiata e la prossimità della curva, i veicoli giungono all’incrocio a velocità superiore a quella prevista che, considerando anche la lunghezza dell’attraversamento pedonale non protetto, diventa causa di incidenti per i pedoni.
Il progetto prevede:
- Inserimento di una isola salvapedoni in corrispondenza del semaforo, dimezzando così la lunghezza dell’attraversamento
- Inserimento di una seconda isola spartitraffico lungo la curva per rallentare i veicoli
- Aggiunta di segnaletica di rallentamento e di un nuovo semaforo
- Installazione dispositivi di accessibilità
- Rinnovo segnaletica orizzontale e verticale
- abbattimento delle barriere architettoniche
Il termine dei lavori è previsto per fine gennaio 2026.
Back to top
Interventi da realizzare
via Nomentana-via Montasio
via Ferdinando di Savoia - via Maria Adelaide
via Ravenna - via Cremona
via di Pietralata - via dell'Acqua Marcia
Black Point - via Recanati - via Cingoli
Black Point - via dell'Acqua Bullicante - via Formia
Black Point - via dell'Acqua Bullicante - via Casilina
Black Point - via Casilina - via del Casale del Torraccio
Black Point - via Casilina - via di Fontana Candida
Black Point - via Aosta - via Casoria Black Point - viale Europa - viale Beethoven
Black Point - via Caduti della Resistenza - via Eroi di Coo
Black Point - via delle Isole del Capoverde - via dei Panfili Black Point - via Appia Nuova - piazza Re di Roma
Black Point - circonvallazione Ostiense - via Nicola da Pistoia
Altri interventi da realizzare
- Black Point - via Quirino Majorana - via Oderisi da Gubbio
- Black Point - piazzale Dunant - via di Monteverde
- Black Point - circonvallazione Gianicolense - via Francesco Amici
- Black Point - via Baldo degli Ubaldi - via Girolamo Vitelli
- Black Point - via di Boccea - altezza civico 231
- Black Point - via Trionfale - altezza civico 8872
- Black Point - via dei Monfortani - via Eugenio Tanzi
- Black Point - via Cassia - altezza civico 1200
- Black Point - via di Vigna Stelluti - altezza civico 187
- Black Point - via Ostiense - piazzale Ostiense
- Black Point - via Cristoforo Colombo - piazzale XXV Marzo 1957
pagina aggiornata il 5 dicembre 2025
Back to top