
Con l’obiettivo di ridurre la quantità e la gravità degli incidenti stradali, Roma Capitale ha individuato i Black Points ovvero le intersezioni stradali a massimo rischio incidentale sulla viabilità, attraverso il lavoro congiunto dell’Assessorato alla Mobilità, Dipartimento Mobilità Sostenibile e Trasporti e Roma Servizi per la Mobilità.
Cosa sono
I Black Points rappresentano intersezioni stradali o aree urbane caratterizzate da un elevato rischio per la sicurezza stradale. Questi luoghi, più suscettibili a incidenti, sono identificati grazie a fattori come la complessità del traffico, la carenza di segnaletica, ostacoli visivi e flussi di veicoli intensi. La programmazione da parte Roma Capitale degli interventi di messa in sicurezza dei Black Points ha come obiettivi:
- Migliorare l’accessibilità per tutti, inclusi pedoni e ciclisti.
- Accrescere la qualità della vita urbana e riqualificare gli spazi pubblici.
- Ridurre incidenti stradali e migliorare la salute pubblica.
- Ridurre l’inquinamento e le emissioni di gas serra.
- Garantire l’accessibilità alle persone con mobilità ridotta e agli anziani.
- Specifiche soluzioni progettuali per la messa in sicurezza includono:
- Ottimizzazione della geometria stradale.
- Installazione di nuova segnaletica orizzontale e verticale.
- Controllo della velocità dei veicoli.
- Riprofilatura dei cigli e cordoli spartitraffico.
- Riprogettazione degli attraversamenti pedonali e dei percorsi per persone con mobilità ridotta.
Mappa
La prima fase degli interventi riguarderà 37 Black Point di cui 30 dedicati alla sicurezza pedonale.
INTERVENTI REALIZZATI
– Black point via Nomentana / Corso Trieste / via L. Spallanzani / via Zara

L’intervento, concluso a luglio 2023, di messa in sicurezza ha riguardato l’ottimizzazione delle intersezioni e la realizzazione di soluzioni per migliorare la sicurezza dei pedoni, ciclisti e veicoli.
Le azioni principali incluse sono state:
• Riprofilatura stradale per una definizione più chiara delle traiettorie. • Nuove segnaletiche orizzontali e verticali per aumentare la visibilità.
- Riduzione della velocità tramite nuove misure di controllo del traffico.
- Miglioramento degli attraversamenti pedonali e rimozione delle barriere architettoniche per garantire l’accessibilità.
– Black point via Cardinal Pacca / via Casale San Pio V


Nell’intersezione tra via Cardinal Pacca e via Casale San Pio V, l’intervento concluso a luglio 2024, ha comportato:
- miglioramento della geometria stradale per favorire traiettorie più sicure.
- nuova segnaletica orizzontale e verticale per migliorare la visibilità e l’orientamento degli utenti della strada.
- sistemi di controllo della velocità per ridurre i rischi di incidenti.
- riprogettazione degli attraversamenti pedonali per garantire una sicurezza maggiore ai pedoni.
- accessibilità per le persone con mobilità ridotta, con la realizzazione di scivoli e percorsi tattili.
Questi interventi sono stati fondamentali per migliorare la sicurezza in un punto particolarmente critico della rete viaria.
– Black point via Odoardo Beccari / via Ambrogio Contarini




L’intervento su via Odoardo Beccari, concluso il 26 marzo 2025, ha comportato un miglioramento dell’accessibilità per i pedoni e la protezione delle aree destinate alla sosta, prevenendo la sosta in doppia fila e migliorando lo spazio pedonale.
Gli obiettivi e gli interventi sono stati finalizzati a quanto segue:
- Riduzione della velocità veicolare attraverso il restringimento della carreggiata in corrispondenza degli attraversamenti pedonali.
- Realizzazione di un cordolo centrale “salvagente”, che protegge i pedoni e consente di attraversare la strada in due fasi distinte, riducendo il tempo di esposizione al rischio.
- Riprofilatura dei marciapiedi lungo i due lati della strada per garantire maggiore visibilità e sicurezza, soprattutto in prossimità degli attraversamenti.
- Abbattimento delle barriere architettoniche, garantendo una piena fruibilità da parte delle persone con disabilità.
- Rifacimento della segnaletica orizzontale e verticale per una maggiore chiarezza e sicurezza stradale.
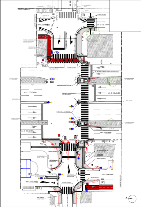
– Black point via C. Colombo / Piazzale Agricoltura

L’intervento, iniziato il 26 marzo 2025, è terminato il 30 giugno 2025.
L’area destinata alla messa in sicurezza è ubicata nel Municipio IX, nell’ambito del quartiere EUR, caratterizzato da una elevata densità di insediamenti (amministrativo e/o terziario).
Il progetto nel suo complesso ha avuto l’obiettivo di migliorare le condizioni di sicurezza dell’intersezione tramite diverse tipologie di intervento e lavorazioni:
• Realizzazione di corsie di accelerazione/decelerazione per gli scambi tra carreggiate.
• Chiusura di scambi a 90° tra le carreggiate.
• Adeguamento della segnaletica stradale.
• Interventi sulla pavimentazione stradale.
• Spostamento di pozzetti e caditoie.
• Spostamento di pali di illuminazione interferenti con le opere.

– Black Point via Cristoforo Colombo / via Ermanno Wolf Ferrari / via Pindaro


L’intervento progettuale, avviato il 3 febbraio 2025, riguarda il territorio del X Municipio, tra i quartieri Casalpalocco e Infernetto ed è terminato il 14 giugno 2025.
Obiettivo primario del progetto è stato la regolarizzazione efficace del flusso del traffico al fine di limitare comportamenti non adeguati, ridurre la velocità e migliorare complessivamente la visibilità dell’area, nel rispetto dei vincoli territoriali.
Tra gli interventi specifici:
- Canalizzazione del traffico con suddivisione in due corsie parallele e introduzione di un doppio semaforo.
- Revisione e ottimizzazione delle connessioni pedonali attraverso la ridefinizione delle isole spartitraffico, l’installazione di paletti dissuasori e l’inserimento di percorsi tattili per agevolare la mobilità delle persone ipovedenti. Il disegno prevede l’integrazione con il progetto della ciclabile “Ciclomare.
- Spostamento e adeguamento dei pozzetti esistenti e nuove caditoie per favorire il drenaggio dell’acqua piovana.
- Aggiornamento della segnaletica orizzontale e verticale e installazione di segnaletica luminosa “occhi di gatto”.
- Rinnovo della pavimentazione stradale.
– Black Point via Cristoforo Colombo / via Federici / via Padre Semeria
L’intervento, avviato il 7 aprile 2025, ha previsto l’inserimento di isole salva pedoni mediante il prolungamento dei tre spartitraffico presenti su Via Cristoforo Colombo, lato Piazza dei Navigatori ed è priva di barriere architettoniche.
Gli altri interventi sono stati:

• Rinnovo dell’attraversamento ciclabile in testa a via Cesare Federici. Pertanto la lunghezza degli attraversamenti di Via Cristoforo Colombo si è ridotta da 42 m complessivi a 35 m, con un massimo tratto di attraversamento scoperto pari a 9 m, garantendo una maggiore protezione del pedone nel mezzo della carreggiata.
• Allargamento dei marciapiedi in corrispondenza degli attraversamenti di Via Cristoforo Colombo e di Via Padre Semeria. Questi interventi hanno consentito una migliore definizione delle traiettorie ed ad una diminuzione della lunghezza degli attraversamenti che passano da 32 metri complessivi a 23 m.
• Realizzazione di tre nuovi attraversamenti con l’opportuno rifacimento della relativa segnaletica orizzontale: due lungo le complanari esterne di Via Cristoforo Colombo ed una lungo Via Padre Semeria.
• Confermato il doppio senso di marcia per la carreggiata esterna di Via Cristoforo Colombo, direzione Piazza dei Navigatori, dove è stato inserito uno spartitraffico per una migliore regolazione delle traiettorie in entrata e in uscita dall’area a parcheggio, presente sempre in carreggiata esterna della via Cristoforo Colombo a sinistra dell’incrocio con via Padre Semeria.
- Ulteriore variazione della circolazione con l’allargamento del marciapiede e l’eliminazione della svolta, sebbene già non regolare, da Via Cristoforo Colombo, direzione Piazza dei Navigatori, verso Via Padre Semeria.
L’intervento si è concluso il 5 luglio 2025.
– Black Point via Ugo Ojetti / via Francesco Jovine

Il Black Point pedonale di “Via Ugo Ojetti-Via Francesco Jovine” si trova nel Municipio III, all’interno del perimetro urbano nella zona nordest della città, servito da linee TPL portanti e di adduzione alle vicine stazione metropolitane, con livelli di servizio e frequenze elevate.
I lavori su via Ojetti, nel tratto compreso tra piazza Primoli e piazza Talenti, hanno avuto come obiettivo l’omogeneità alla sezione stradale, composta da due corsie per senso di marcia, come nel tratto precedente (G. Stampa-Primoli).
L’intervento si è concluso il 20 giugno 2025
Gli interventi realizzati, sono stati finalizzati alla:
- Riduzione della lunghezza degli attraversamenti pedonali per migliorare la sicurezza.
- Limitazione dei comportamenti scorretti alla guida.
- Aumento della visibilità del pedone.
ed hanno riguardato:
- Revisione della sezione stradale.
- Realizzazione di nuovi marciapiedi o ampliamento di quelli esistenti (con ampliamenti di marciapiedi”orecchie” alle intersezioni di via Ugo Ojetti con via Renato Fucini, via Arturo Graf, via Ettore Romagnoli e via Luigi Capuana per racchiudere la sosta in linea su via Ugo Ojetti).
- Inserimento e/o adeguamento degli attraversamenti pedonali.
- Riposizionamento della fermata TPL (L’attesa alle fermate del bus è in un’isola dedicata, di conseguenza non è necessario attraversare la pista ciclabile all’arrivo del mezzo e la pista prosegue senza interruzioni in corrispondenza della fermata).
- Spostamento di pozzetti e caditoie.
- Adeguamento della segnaletica stradale.
- Rinnovo della pavimentazione stradale.
– Black Point / via Cristoforo Colombo / via Canale della Lingua


Il progetto di messa in sicurezza, iniziato ad aprile 2025, interessa l’intersezione Via Cristoforo Colombo – Via del Canale della Lingua, all’interno del X Municipio e concluso il 10 luglio 2025.
E’ stato previsto un nuovo schema di circolazione dell’intersezione esistente con razionalizzazione delle svolte e l’introduzione di una nuova intersezione semaforizzata in via Giulio Bertoni.
Gli interventi hanno riguardato:
- Rinnovo segnaletica orizzontale a cui è stato affiancato il dispositivo “occhi di gatto”
- Realizzazione di marciapiedi e banchine di fermata del TPL e di isole di traffico
- Abbattimento delle barriere architettoniche attraverso la realizzazione di scivoli alle banchine di fermata e adozione di percorsi tattili in corrispondenza degli attraversamenti pedonali
- Nuova pavimentazione stradale
- Installazione di barriere guard-rail e di attenuatori d’urto
- Archetti parapedonali in corrispondenza dei nuovi varchi pedonali e delle banchine di fermata TPL
- Piantumazione compensativa di nuovi alberi
- Adeguamento dell’impianto semaforico dell’intersezione esistente (via C.Colombo/via Canale della Lingua) e realizzazione di un nuovo impianto nella nuova intersezione (via C. Colombo/via G. Bertoni)
– Black Point Largo Somalia

Il sito è localizzato nel Municipio II, nel perimetro urbano nella zona nord/est della città. È una zona ad alta densità residenziale con presenza di esercizi commerciali e linee di trasporto pubblico.
L’intervento, avviato il 21 ottobre 2025 e concluso il 1 dicembre 2025, è stato progettato per risolvere diverse criticità, tra cui l’eccessiva larghezza della strada che induceva comportamenti rischiosi, la scarsa visibilità dovuta alla sosta irregolare, la presenza di barriere architettoniche.
La riqualificazione ha previsto varie tipologie di lavori, tra cui:
- Realizzazione o in alcuni casi adeguamento degli attraversamento pedonali.
- Revisione della sezione stradale mediante isole spartitraffico al fine di ridurre l’area di conflitto tra pedoni e veicoli.
- Nuovi marciapiedi e ampliamento di quelli esistenti.
- Adeguamento della segnaletica.
- Rinnovo della pavimentazione stradale.

Ante

Post

Ante

Post
– Black point via Cardinal Ginnasi / via Vannutelli

L’intervento, avviato il 25 luglio 2025 e terminato il 23 ottobre 2025, si colloca nel X Municipio, nella frazione litoranea del Lido di Ostia. L’area è urbana e densamente abitata, con presenza di servizi e attività ludico-ricreative.
Le carreggiate molto ampie favoriscono l’alta velocità e inversioni pericolose. Gli attraversamenti pedonali molto lunghi aumentano l’esposizione al rischio e la sosta irregolare diffusa riduce la visibilità. Sono inoltre presenti barriere architettoniche.
Sono stati realizzati i seguenti interventi:
- Riduzione dell’ampiezza delle corsie.
- Ampliamento dei marciapiedi su tutti e 4 gli angoli dell’intersezione, per aumentare visibilità e sicurezza.
- Riduzione degli attraversamenti pedonali, con isole salvapedoni intermedie.
- Nuova segnaletica orizzontale, verticale e rifrangente.
- Abbattimento barriere architettoniche.
- Regolarizzazione della sosta e ottimizzazione della pavimentazione stradale.

Ante

Post

Ante

Post
– Black Point via Portuense / via Arturo Martini


L’intervento, avviato il 17 novembre 2025 si è concluso il 19 dicembre 2025, si trova nel Municipio XI, nel quartiere densamente popolato di Corviale, in prossimità del Grande Raccordo Anulare. È una zona caratterizzata da alti flussi di traffico a velocità elevate. In questo tratto, via Portuense è una strada a doppio senso di marcia, con carreggiate molto ampie.
Data l’ampiezza della carreggiata e la prossimità della curva, i veicoli arrivavano all’incrocio a velocità superiore a quella prevista che, considerando anche la lunghezza dell’attraversamento pedonale non protetto, diventava causa di incidenti per i pedoni.
Sono stati realizzati i seguenti interventi:
- Inserimento di una isola salvapedoni in corrispondenza del semaforo, dimezzando così la lunghezza dell’attraversamento.
- Inserimento di una seconda isola spartitraffico lungo la curva per rallentare i veicoli.
- Aggiunta di segnaletica di rallentamento e di un nuovo semaforo.
- Installazione dispositivi di accessibilità.
- Rinnovo segnaletica orizzontale e verticale.
- abbattimento delle barriere architettoniche.
– Black point via Nomentana / via di Casal Boccone / via del Casale di San Basilio
I lavori, sono iniziati il 9 giugno 2025 e terminati il 31 dicembre 2025, ed hanno avuto come obiettivo la messa in sicurezza di tre intersezioni nei Municipi III e IV:
- via Nomentana – via D. Fabbri
- via Nomentana – via di Casale S. Basilio
- via di Casale S. Basilio – via T. Buazzelli – via N. M. Nicolai
Il progetto, ha previsto un nuovo schema di circolazione con istituzione di sensi unici di marcia, contempla diverse tipologie di intervento:
- Messa in sicurezza, ove necessario, degli attraversamenti e percorsi pedonali.
- Migliore definizione delle traiettorie per ridurre le situazioni di incertezza.
- Nuova segnaletica orizzontale e verticale, più chiara e comprensibile.
- Controllo e riduzione della velocità per prevenire incidenti e aumentare la sicurezza dei pedoni.
- Riprofilatura dei cigli e dei cordoli spartitraffico per ridurre il rischio di collisioni e aumentare la visibilità
- Regolazione semaforica per ridurre i tempi di attesa e gestire più efficacemente il traffico
- Abbattimento delle barriere architettoniche, garantendo accessibilità dei percorsi alle persone con disabilità
- Adeguamento del sistema di illuminazione pubblica

Ante

Post

Ante

Post
– Black point via delle Isole del Capoverde / via dei Panfili




I lavori sono iniziati il 26 gennaio 2026 e terminati il 24 aprile 2026 ed hanno avuto come obiettivo la messa in sicurezza dell’intersezione tra via delle Isole del Capoverde e via dei Panfili.
L’intersezione si trova nel Municipio X, Lido di Ostia, in una zona densamente abitata e ricca di esercizi commerciali, nonché molto trafficata.
L’intervento è stato necessario in quanto la strada ha due carreggiate molto ampie separate da uno spartitraffico alberato con la presenza di “bretelle” di ritorno, cioè corsie secondarie che permettono ai veicoli di effettuare manovre, a volte avventate.
Gli attraversamenti erano molto lunghi e la velocità rilevata dei veicoli risultava difficile l’attraversamento in sicurezza. La presenza delle bretelle e i comportamenti a volte spericolati degli automobilisti peggioravano la situazione. La sosta irregolare rendeva scarsa la visibilità.
Gli interventi necessari sono stati:
- Ampliamento dei marciapiedi lungo tutta l’area
- Inserimento isola pedonale fra le due bretelle di ritorno
- Inserimento di una piastra centrale “a clessidra” per impedire manovre vietate
- Riposizionamento degli attraversamenti pedonali verso nuova area pedonale
- Adeguamento segnaletica orizzontale e verticale
- Abbattimento barriere architettoniche
INTERVENTI IN CORSO DI REALIZZAZIONE
– Black point via Ferdinando di Savoia / via Maria Adelaide

I lavori sono stati avviati il 23 febbraio 2026 ed hanno come obiettivo la messa in sicurezza dell’incrocio pedonale di Via Ferdinando di Savoia – Via Maria Adelaide, localizzato nel Municipio I, nei pressi di Piazza del Popolo, in pieno centro storico.
L’intersezione si trova in una zona con alta densità di insediamenti residenziali e attività commerciali ed è caratterizzata da un traffico veicolare molto elevato, soprattutto in alcuni orari.
Essendo la carreggiata molto ampia, è consentita la percorrenza di più vetture per corsia che possono creare un potenziale pericolo in presenza di attraversamenti pedonali. La situazione è resa critica anche dalla presenza di un distributore di benzina subito dopo l’attraversamento pedonale su Via Ferdinando di Savoia.
L’intervento prevede la messa in sicurezza di due attraversamenti pedonali di via Ferdinando di Savoia mediante la realizzazione di un’isola salva pedoni e l’ampliamento dei marciapiedi agli angoli dell’intersezione con conseguente diminuzione del percorso pedonale e miglioramento della visibilità dei pedoni. È inoltre prevista la realizzazione di scivoli per disabili e di percorsi per non vedenti ed il rifacimento della segnaletica.
Le tipologie di intervento sono quindi:
- Riprogettazione degli attraversamenti pedonali, garantendo la massima sicurezza possibile.
- Abbattimento delle barriere architettoniche con pendenze, scivoli, percorsi tattili e privi di ostacoli.
- Nuove segnaletiche orizzontali e verticali, chiare e comprensibili ai pedoni.
- Controllo e riduzione della velocità con restringimento della carreggiata.
La durata dei lavori è di circa 5 settimane.


– Black point via di Pietralata-via dell’Acqua Marcia


Lunedì 30 marzo 2026 si sono avviati i lavori di messa in sicurezza dell’attraversamento pedonale in via di Pietralata-via dell’Acqua Marcia. Il Black Point si trova nel territorio del IV Municipio.
L’intervento si concentra su:
- Attraversamento pedonale in corrispondenza di via dell’Acqua Marcia all’incrocio con Via di Pietralata
- Attraversamento pedonale in corrispondenza di Via di Pietralata all’incrocio con Via Flora
- Assenza del marciapiede della corsia in direzione est, giungendo da Via Flora
- Assenza di percorsi tattici lineari


Gli obiettivi principali del progetto sono:
- Migliorare sicurezza dei pedoni con l’allargamento del marciapiede su Via dell’Acqua Marcia all’incrocio con Via di Pietralata e un nuovo marciapiede all’incrocio con via Flora
- Garantire l’accessibilità alle persone con mobilità ridotta e alle persone anziane con l’inserimento di percorsi tattili e pendenze corrette
- Migliorare la segnaletica orizzontale e verticale
- Ridurre la velocità dei veicoli restringendo la carreggiata
– Black point Piazzale Dunant – Via di Monteverde




Lunedì 30 marzo 2026 si sono avviati i lavori per l’intersezione di Piazzale Enrico Dunant con via di Monteverde; uno dei punti più trafficati di Monteverde Vecchio.
Le due carreggiate della piazza, separate da uno spartitraffico, favoriscono velocità elevate dei veicoli mentre gli attraversamenti pedonali, lunghi e non protetti, non garantiscono sufficiente sicurezza.
Anche i marciapiedi risultano poco efficaci nel proteggere i pedoni, oltre a non essere adeguati alle norme di accessibilità. Il trasporto pubblico e le relative fermate contribuiscono inoltre a rendere l’incrocio complesso.
Il progetto si sviluppa su più fronti, ridefinendo gli spazi, le traiettorie e spostando gli attraversamenti pedonali.
L’allargamento dello spartitraffico favorisce il restringimento della carreggiata e riorganizza le svolte. Consente inoltre di ricavare spazi per il parcheggio dei motorini.
I due attraversamenti principali vengono spostati verso nord, così da allontanarli dai cassonetti e dalle zone di svolta. L’isola rialzata che separa chi proviene da Via di Donna Olimpia e Via dei Quattro Venti diventerà una nuova isola salva pedoni. Anche i marciapiedi in corrispondenza dei nuovi attraversamenti saranno ampliati.
Tutti gli interventi saranno privi di barriere architettoniche.
INTERVENTI DA REALIZZARE
Altri interventi da realizzare
- Black Point – via Ostiense – piazzale Ostiense
- Black Point – via Cristoforo Colombo – piazzale XXV Marzo 1957